Satimi.sook ice cream shop

Type : Cafe
Design : Bamboosaurus
Builder : Bamboosaurus
Photo : Sarawin Kawin
Location : Koh Phangan, Surat Thani, Thailand
Area : 96 Sq.m.
Project Year  : 2024
Status : Completed

ความต้องการเบื้องต้น

โครงการ Satimi.sook Ice Cream Shop เกิดจากความตั้งใจของผู้ก่อตั้งแบรนด์ไอศกรีมโฮมเมด “Satimi” บนเกาะพะงัน ที่ต้องการสร้างพื้นที่จำหน่ายไอศกรีมซึ่งสะท้อนเอกลักษณ์ของท้องถิ่นและคงอยู่ร่วมกับธรรมชาติเดิมของพื้นที่ซึ่งเคยเป็นสวนมะพร้าวมาก่อน โดยต้องการให้สถาปัตยกรรมเชื่อมโยงกับต้นไม้และบริบทท้องถิ่น มากกว่าจะเป็นเพียงอาคารพาณิชย์ทั่วไป

แนวคิดการออกแบบ

แรงบันดาลใจหลักมาจาก “ต้นมะพร้าว” พืชท้องถิ่นอันเป็นสัญลักษณ์ของเกาะพะงัน โดยนำรูปทรงและจังหวะของต้นมะพร้าวมาถ่ายทอดผ่านองค์ประกอบทางสถาปัตยกรรม เช่น การวางตำแหน่งเสาให้สอดคล้องกับต้นไม้เดิม เพื่อสร้างความต่อเนื่องระหว่างอาคารกับธรรมชาติ รูปทรงหลังคาทรงจั่วต่ำได้รับแรงบันดาลใจจากภูมิปัญญาท้องถิ่น ช่วยลดแรงลมมรสุมและสะท้อนเอกลักษณ์ของอาคารเขตร้อน นอกจากนี้ยังผสมผสานวัสดุธรรมชาติอย่างไม้ไผ่กับวัสดุร่วมสมัย เช่น เหล็ก แผ่นซีเมนต์บอร์ด และบล็อกแก้ว เพื่อสร้างบรรยากาศร่วมสมัยแต่คงกลิ่นอายธรรมชาติ

ลักษณะเด่นของโครงสร้าง

โครงสร้างหลักของอาคารใช้เหล็กเพื่อความมั่นคงและก่อสร้างได้รวดเร็ว ส่วนพื้นที่รับประทานอาหารใช้โครงไม้และกรุผนังไม้ซ้อนเกล็ดเพื่อสร้างความอบอุ่นเป็นกันเอง ด้านหน้าร้านออกแบบด้วยการผสมผสานไม้ บล็อกแก้ว และโครงสร้างไม้ไผ่ สร้างมิติและสอดคล้องกับจังหวะของต้นมะพร้าวเดิม พื้นฐานอาคารใช้เสาเหล็กชุบสังกะสีแบบ “Helical Piles” แทนฐานรากเทปหรือฐานแผ่ทั่วไป เหมาะกับดินทรายของเกาะพะงัน สามารถติดตั้งได้รวดเร็ว ไม่เกิดแรงสั่นสะเทือนหรือเสียงดัง ลดผลกระทบต่อรากไม้เดิม อีกทั้งยังสามารถถอดย้ายได้ในอนาคต ซึ่งสอดคล้องกับแนวคิดการก่อสร้างอย่างยั่งยืน

Satimi.sook คือการทดลองของสถาปัตยกรรมที่เติบโตจากพื้นที่จริงและชีวิตจริงของผู้คนบนเกาะพะงัน เป็นงานออกแบบที่เรียบง่ายแต่เต็มไปด้วยความตั้งใจใช้วัสดุพื้นถิ่น ความคิดร่วมสมัย และความเคารพต่อธรรมชาติ เพื่อสร้าง “พื้นที่เล็กๆ” ที่อบอุ่น สดใหม่ และเป็นส่วนหนึ่งของชุมชน

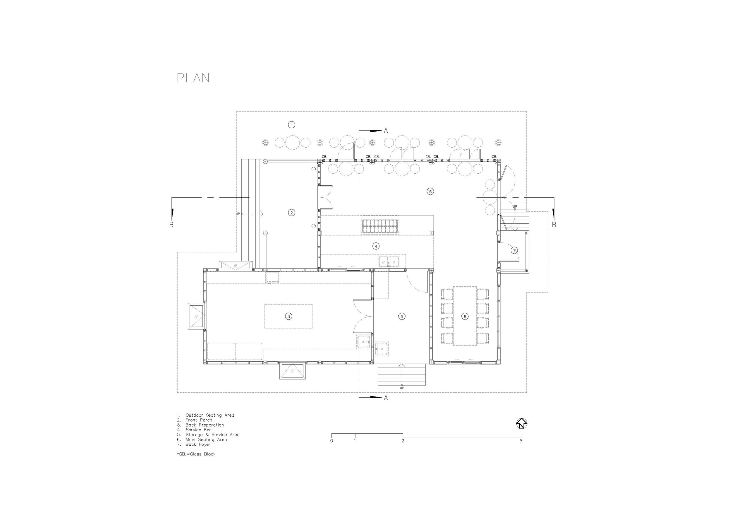
Basic Requirements

The Satimi.sook Ice Cream Shop originated from the founder’s vision to create a space that reflects the identity of Satimi a homemade ice cream brand from Koh Phangan. Located on a former coconut grove, the project aims to integrate architecture with the existing trees and local context, rather than functioning solely as a commercial building.

Design Concept

The design takes inspiration from the coconut palm an iconic local plant of Koh Phangan. The columns are aligned with the original tree positions, creating rhythm and harmony between the built and natural environments. The low-gable roof references vernacular wisdom, minimizing monsoon wind impact and reinforcing a tropical island identity. Bamboo is used structurally and decoratively, paired with modern materials such as steel, cement board, and glass blocks to balance natural warmth with contemporary functionality.

Key Structural Features

The main structure employs steel for strength and construction efficiency, while the dining area uses timber framing and overlapping wood cladding to evoke a homely feel. The façade combines timber, glass blocks, and bamboo grids to create visual depth and rhythm. For the foundation, galvanized helical piles replace traditional spread footings an ideal solution for Koh Phangan’s sandy soil. This method allows quick installation without vibration, minimizes disturbance to tree roots, and supports future relocation, reflecting the project’s sustainable construction approach.

Satimi.sook represents an architectural experiment rooted in place, community, and everyday life on Koh Phangan. It is a modest yet thoughtful design that blends local materials, contemporary thinking, and respect for nature creating a small, welcoming space that feels fresh, genuine, and connected to its surroundings.